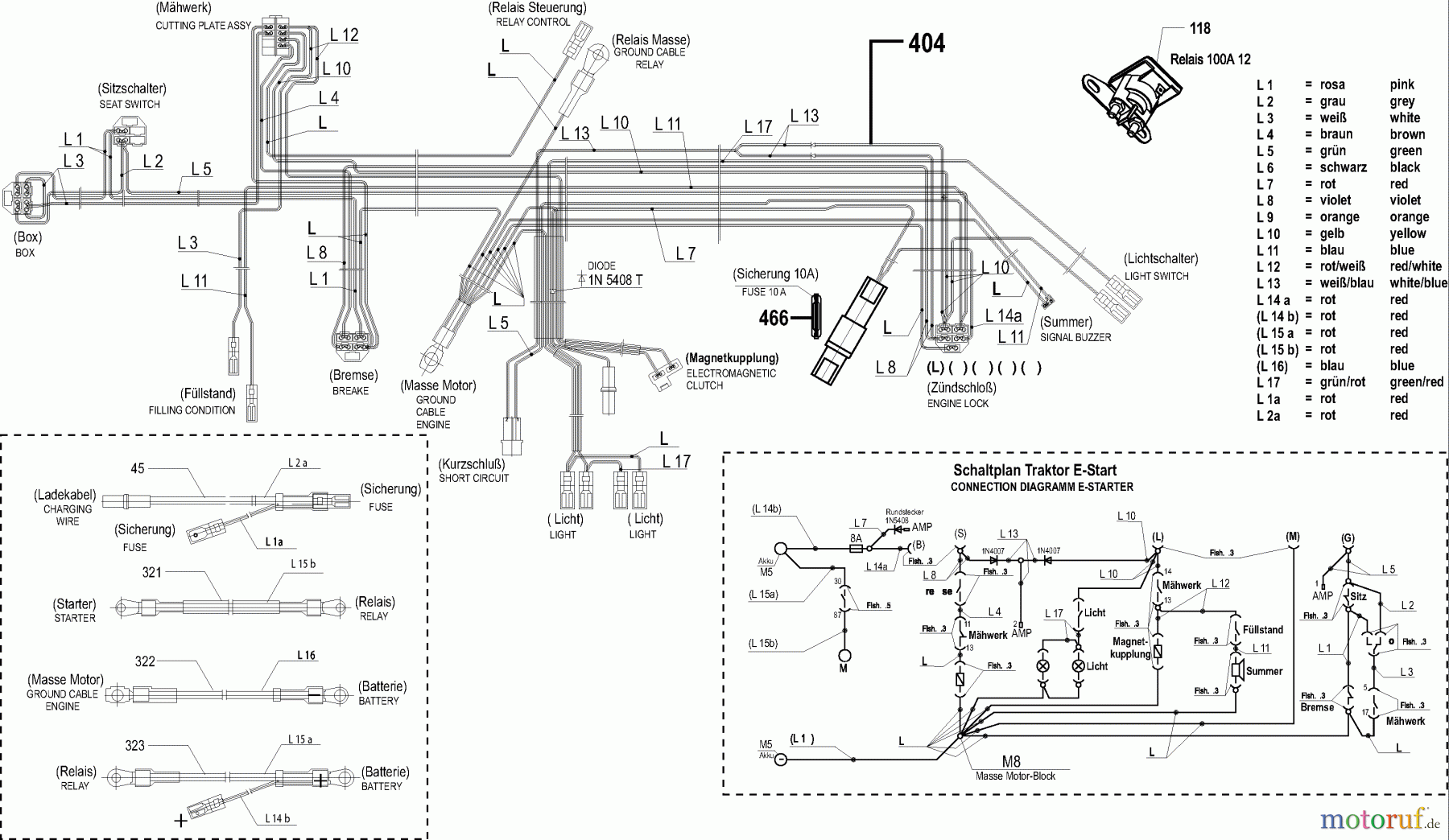
Dolmar TM-102.18 H2 TM-102.18 H2 (2004) 8 ELEKTRISCHE TEILE Ersatzteile
8 ELEKTRISCHE TEILE TM-102.18 H2 (2004)

Hier finden Sie die Ersatzteilzeichnung für Dolmar Rasentraktoren TM-102.18 H2 TM-102.18 H2 (2004) 8 ELEKTRISCHE TEILE. Wählen Sie das benötigte Ersatzteil aus der Ersatzteilliste Ihres Dolmar Gerätes aus und bestellen Sie einfach online. Viele Dolmar Ersatzteile halten wir ständig in unserem Lager für Sie bereit.
| BildNr | Artikel Nummer | Bezeichnung | |
| 45 | 920210000 | SECHSKANTMUTTER M10 | |
| 118 | 663521361 | STARTERRELAIS | |
| 321 | 663521363 | KABEL STARTER/RELAIS 10 MM | |
| 322 | 663521365 | KABEL MASSELEITUNG | |
| 323 | 663521366 | KABEL BATTERIE/RELAIS | |
| 404 | 663521364 | KABELBAUM 102 CM | |
| 466 | 663461075 | SICHERUNG 10A | |



